NORTH FORK RESIDENCE
SHorefront home for A LArge Family
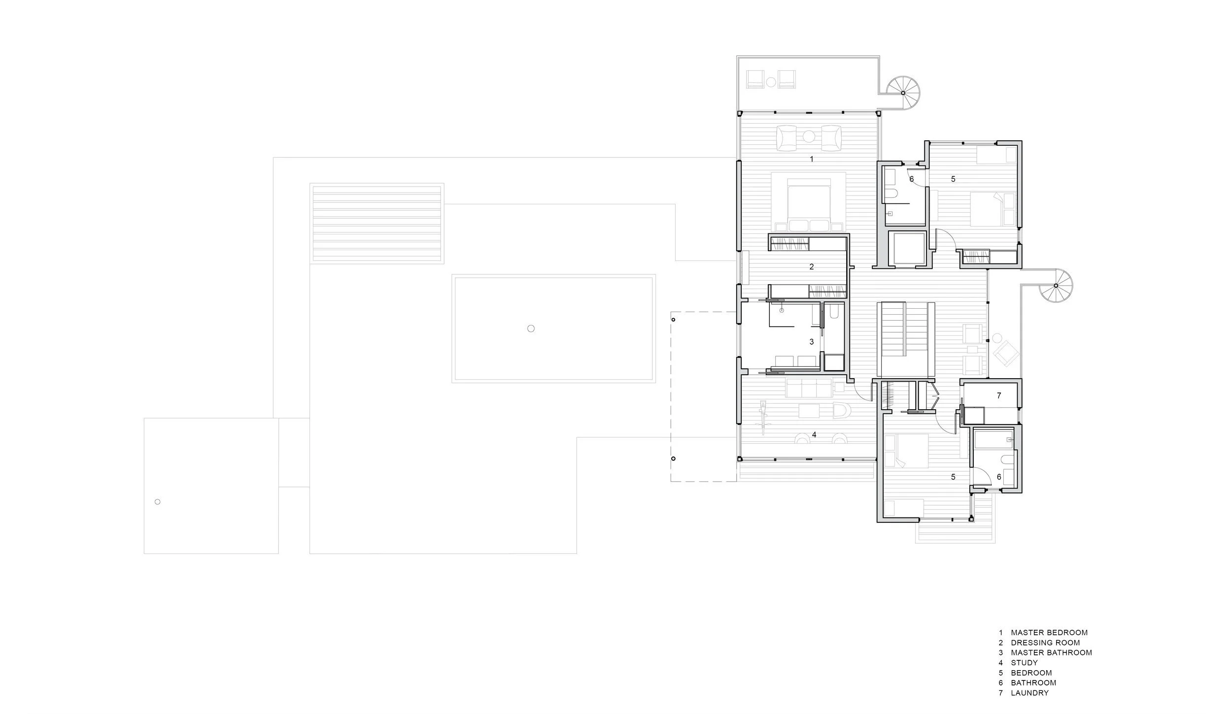
Expansive waterfront views and rural sensibilities serve as the inspiration for this family home on Long Island’s North Fork, where rural farming and fishing communities have informed living patterns and design standards for generations. The large site’s development, including gardens, manicured lawns, and untamed natural elements, presents a challenge in integrating sleek, contemporary architecture into a diverse landscape.
Intensive daylight and massing studies have informed the design’s transparency and linearity, as great care has been shown to inject elements of the program with the most desirable daylight and views.
A range of eclectic influences, from Piet Mondrian’s work methodology, Richard Neutra’s western hosies, and the vernacular barns of Long Island, hope to give this home a sense of place unique to its singular location. A central entry serves as the boundary between private and public volumes. The home’s outdoor amenities - pool, shade structures, screened porch, full service kitchen, etc. - seek to dissolve the boundaries between indoor and outdoor living to maximize enjoyment of the natural landscape.
In addition to the main residence and a series of outbuildings, the project involves the creation and implementation of a master plan that links the home with orchards, farms and greenhouses.
Location: Long Island, NY
Size: 9,700 sf
Status: Construction
Project Team: Artisan Construction, General Contractor Starr-Whitehouse, Landscape Architect Kika Schoenfeld, Interior Collaborator L’Observatoire International, Lighting Designer
